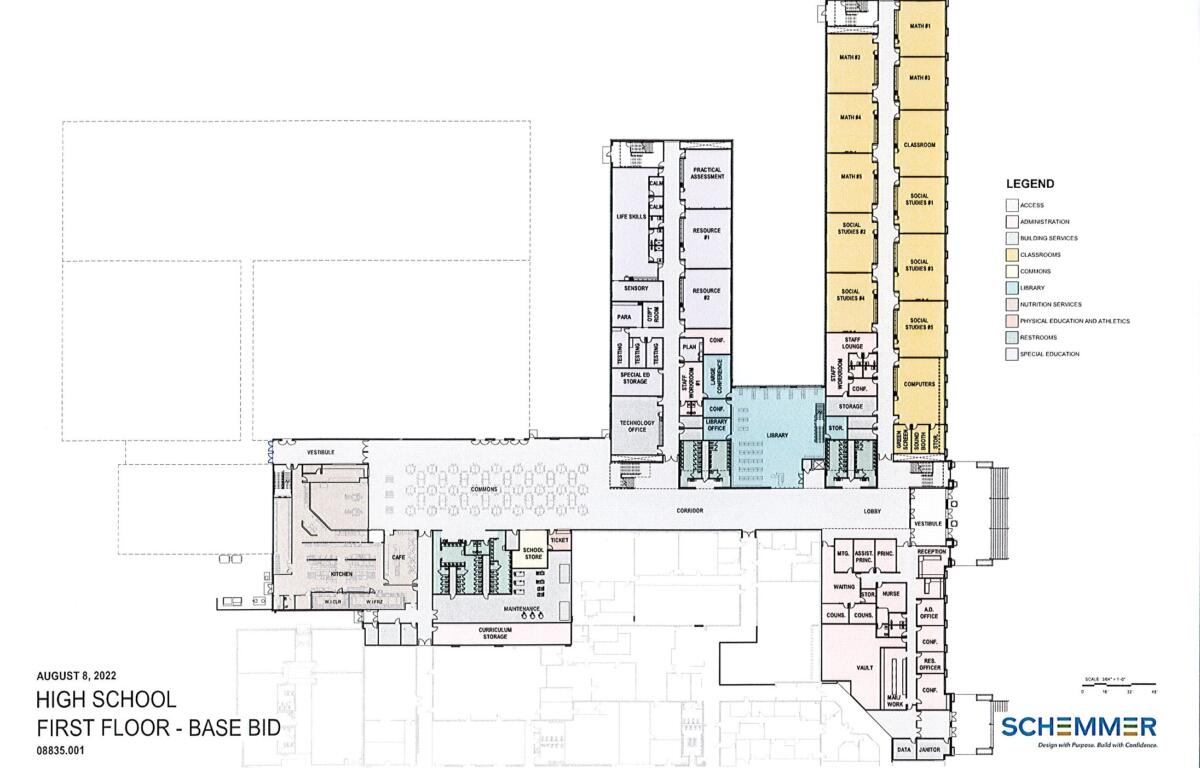
The final bid package for a new Mitchell High School is expected to be on the agenda of the next Mitchell School Board meeting in October. The board received an update on the progress of the design of the school at Monday’s meeting. If the board approves the bid package on second reading in November, bids on the project would be opened. Construction could begin as early as spring to be ready in time for the second half of the 2024-25 school year. The school’s price tag is about $20 million more than what had been budgeted. The base bid of nearly $42 million would leave out a main gymnasium, an auxiliary gym, a gymnastics/cheer area as well as finishes for those areas. The currently unfunded portion of the school could be funded through the sale of capital outlay bonds, passage of a bond issue, or through private donations. No action was taken on the new high school at yesterday’s meeting.
Final bid package for new Mitchell High School expected to come before school board in October
